ПРОЕКТИРОВАНИЕ И АРХИТЕКТУРА

Специалисты компании "БраерСтрой" разрабатывают проектную документацию и эскизный проект любой сложности с учетом пожелания клиента
проект дома
эскиз проекта
вариант проекта
вариант проекта
Эскизный проект - документ, который дает возможность клиенту понять, каким будет его будущий дом!
иконка руки
Кликните на фото

О НАС

Компания «БраерСтрой», предлагает услуги по "Проектированию и Архитектуре" жилых, коммерческих малоэтажных, и многоэтажных зданий.
У нас многолетний опыт проектирования объектов любой сложности;
Член СРО в сфере проектирования и строительства;
Европейские стандарты качества.
НАШИ УСЛУГИ
Выберите услугу
НАШИ УСЛУГИ
Выберите услугу

ЭСКИЗНОЕ ПРОЕКТИРОВАНИЕ

ЭТАПЫ РАБОТЫ:
Встреча с клиентом:
Разработка эскизного проекта:
01
02
План – схема благоустройства участка;
Выбор стиля будущего дома;
Планировка будущего дома (до 3-х вариантов);
Визуализация (Эскиз, скетч, 3D Визуализация);
Принципиальные разрезы;
Фасады (несколько вариантов фасадов).
этапы проектирования
Обсуждение будущего проекта;
Составление Технического задания на проектные работы.
ПРОЕКТНАЯ ДОКУМЕНТАЦИЯ (от 1500 р./м2)
Выполнение сметных расчетов;
Обеспечение необходимым оборудованием;
Снабжение материалами.
частный проект
Разработка проектной документации и защита в экспертизе;
Получение разрешительной документации;
коммерческий проект
Коммерческий проект
Частный проект
АВТОРСКИЙ НАДЗОР (от 20 000 р. в месяц)
Осуществляем авторский надзор на каждом этапе строительства.
Авторский надзор — контроль лица, осуществившего подготовку проектной документации, за
соблюдением в процессе строительства требований проектной документации*.
надзор за проектом
*3 п. 2 статьи 2 ФЗ РФ от 30 декабря 2009 г. N 384-ФЗ «Технический регламент о безопасности зданий и сооружений»

Больше услуг

СВЯЗАТЬСЯ С АРХИТЕКТОРОМ
НАШИ ПРОЕКТЫ
каталог проектов
каталог проектов
каталог архитектуры
КАТАЛОГ АРХИТЕКТУРЫ
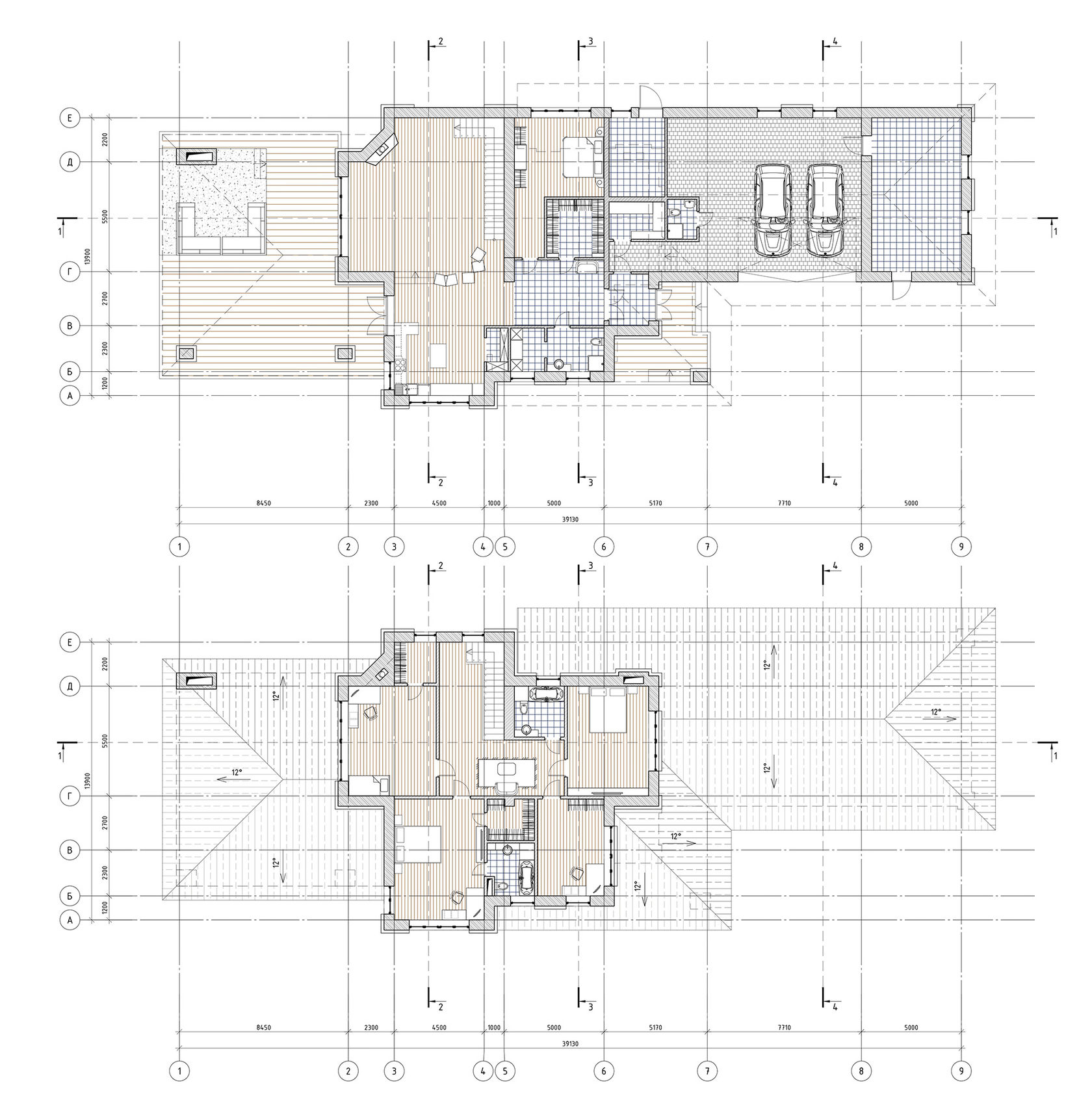
ПРИМЕР ЭСКИЗНОГО ПРОЕКТА
пример проекта
пример эскиза проекта
пример проекта загородного дома
пример эскизного проекта
пример проекта загородного дома
АРХИТЕКТУРНЫЕ СТИЛИ
БАУХАУЗ
МИНИМАЛИЗМ
ДЕКОНСТРУКТИВИЗМ
ЭКО-ТЕК
ХАЙ-ТЕК
МОДЕРНИЗМ
ЭКСПЕРЕМЕНТАЛЬНЫЙ
РУССКИЙ АМПИР
РОКОКО
НЕОКЛАССИКА
АНГЛИЙСКИЙ СТИЛЬ
ШАЛЕ
ГДЕ МЫ НАХОДИМСЯ
117186, Москва, ул. Нагорная, д. 18, к. 4
+7 (495) 645-71-11
info@braer.ru
проект многоэтажного здания
braer лого
+7 (495) 645-71-11
"Работает дежурный инженер 24/7"
© БраерСтрой 2019